-->
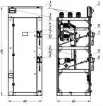
КСО - Камеры сборные одностороннего обслуживания предназначены для приема и распределения электроэнергии трехфазного переменного тока частотой 50 Гц напряжением 6, 10 кВ в сетях с изолированной или заземленной нейтралью.
КСО в зависимости от типа исполнения комплектуются выключателями нагрузки (ВНА, ВНР), разъединителями (РВЗ, РВФЗ), вакуумными выключателями (EASYPACT EXE, BB/Tel, VF), устройствами релейной и дуговой защиты («Schneider Electric», «Радиус Автоматика», « Механотроника») и т.п.
Ключевыми отличительными особенностями ячеек КСО являются следующие:
Ячейки КСО в большинстве случаев являются хорошим низкоценовым решением по комплектации распределительных устройств 10(6) кВ трансформаторных и распределительных подстанций и обеспечивают практически весь необходимый функционал (коммутация, защита, распределение) в зависимости от конкретной специфики проекта.
КТП (подстанции)
Электрощитовая продукция 0,4
Комплектное распределительное устройство 6 (10), 35кВ; ячейки КСО 6 (10)
Кабеленесущие системы (лотки)
Проволочные лотки
Аксессуары к лотку
Молниезащита и заземление
Светодиодные светильники
Светильники промышленные
Уличные и магистральные светильники
Светильники архитектурные
Дизель-генераторы (ДГУ)
Радиодетали
АСУ ТП
Отопительное оборудование
Блочно-модульные котельные и Тепловые пункты Vilden
Станции подачи-фильтрации тяжёлых видов топлива Vilden
Тепловые пункты
Системы шкафов Vilden CUBE (V3)
Приборы учета, контроля и измерения
Силовое оборудование
Вентиляционные установки
Инструмент
Изделия
Хомуты, клеммы, наконечники, разъемы изолированные, изолента, термоусаживаемая трубка, гильзы
Пускорегулирующая аппаратура
Корзина пуста